Skip to main content

Apartment in TOP Lage | Innenstadt | we rooms

1790mntl.
Zusätzliche Kosten: Verwaltungsgebühr 250,-EUR und Kaution 3580,-EUR

In nur 10 Minuten zu Ihrem neuen Apartment in Frankfurt

Verfügbar ab 01.02.2026


Eigenschaften

73 m²

160 x 200cm Bett

Apartment

Bettdecke + Kissen inkl.

Bettwäsche inkl.

Eigener Kühlschrank

Eigenes Bad

Fahrradkeller

Gemeinschaftsmünztrockner

Gemeinschaftsmünzwaschmaschine

Innenstadtnähe

Kaffeemaschine

Mikrowelle

Nichtraucherzimmer

TV

voll ausgestattete eigene Küche

Wasserkocher

WLAN inklusive


YouTube

Mit dem Laden des Videos akzeptieren Sie die Datenschutzerklärung von YouTube.
Mehr erfahren

Video laden

Was für ein herrlicher Altbau in 2015 komplett kernsaniert und mit allen Annehmlichkeiten des modernen Wohnraum ausgestattet.

Sie suchen die zentrale Wohnlage mitten im Bankenviertel und erreichen so fußläufig auch Ihren Arbeitsplatz?

Sie wollen ohne Aufwand umziehen, denn die schicken und funktionalen Möbel sind schon da.

Dann sind Sie hier genau richtig!

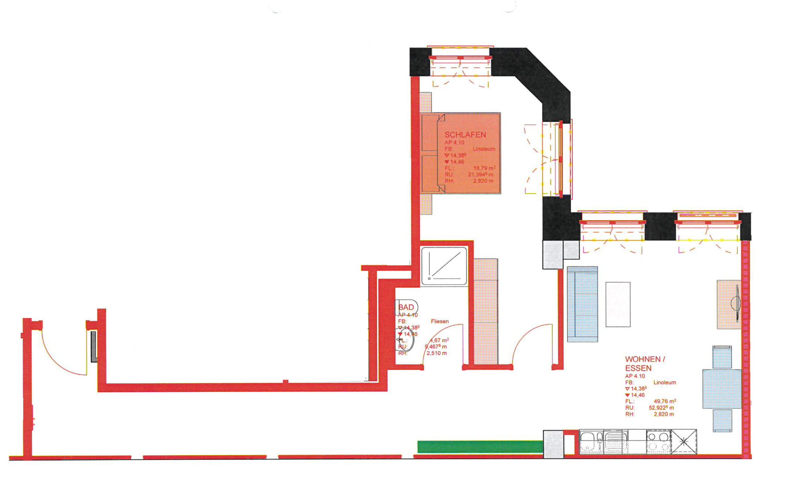
Es erwarten Sie sonnige 2-Zimmerwohnungen in unterschiedlichen Größenordnungen, Sie wählen zwischen der kleinen Variante mit ca. 45 m² bis hin zum großzügigen 76 m² Apartment mit noch einigen Variationen dazwischen.
Schauen Sie sich unsere Grundrissbeispiele dazu an.

Natürlich wurde auch an den Aufzug gedacht sowie an die Privatsphäre der Mieter, hier perfekt gelöst durch den in sich abgeschlossenen Innenhof. Dieser ist nur für die Mieter des Hauses mittels Schließsystem zugänglich und die installierte Video-Gegensprechanlage in jeder Wohnung bietet nochmal zusätzlichen Privatschutz.

Ideal sowohl für kürzere Aufenthalte von mindestens 3 Monaten wie auch für langfristige Anmietung durchaus geeignet. Genügend Platz sowohl für Singles als auch für Paare!

Ausstattung

Die schicken 2- Zimmer Apartments verfügen über großzügige Grundrisse. Die hohen Räume vermitteln modernes Altbau-Feeling.

Offen ins Wohnzimmer integrierte Einbauküchen, bereits inklusive allem Geschirr, sind genau wie die modernen Duschbäder der gehobene Standard.

Jedes Apartment ist elegant und schick eingerichtet mit komfortabler Sitz- und Essgruppe, Einbauküche, einem großen gemütlichen Bett, geräumigen Kleiderschrank, Flachbild TV, Schreibtisch mit Stuhl und weiteren wohnlichen Accessoires.

Bettzeug, Bettwäsche und ein Set Handtücher werden außerdem schon zur Verfügung gestellt.

Das W-LAN ist hier schon inklusive. Der Strom wird von jedem Bewohner selbst angemeldet.

Kostenpflichtige Waschmaschinen und Trockner der Marke Miele befinden sich im Keller zur gemeinschaftlichen Nutzung aller Mieter. Nutzung und Zahlung laufen über den Anbieter „WeWash“.

Für Fahrräder gibt es den allgemeinen Fahrradraum im Kellergeschoss.

Lage

Das Apartmenthaus befindet sich mitten im Herzen von Frankfurt. In wenigen Minuten sind fast alle Büros im Bankenviertel zu Fuß erreichbar.

Im direkten Umfeld liegen Theater, Oper und auch die Einkaufsviertel wie z.B. Zeil, Freßgass, Goethestraße, Opernplatz sind nicht weit entfernt. Natürlich sind auch Fitness-Studios bequem fußläufig erreichbar.

Auch das Frankfurter Mainufer quasi um die Ecke: Joggen, Radfahren oder einfach nur Relaxen.

Nicht zu vergessen alle Geschäfte des täglichen Bedarfs genauso wie Bars und Restaurants finden Sie in großer Anzahl in unmittelbarer Umgebung.

Sonstiges
Privater, bequemer und größer als ein Hotelzimmer und trotzdem zeitlich flexibel anzumieten und das zentral mitten im Frankfurter Bankenviertel.

Neugierig geworden?

Dann vereinbaren Sie Ihren Besichtigungstermin mit uns, wir freuen uns schon heute auf Ihren Anruf.

Unsere festen Bürozeiten sind Montag bis Freitag zwischen 8:00 und 17:00 Uhr und Samstag von 9:00 bis 15:00 Uhr.

Ihre Anfrage sollte auf jeden Fall eine gültige Telefonnummer. + eine E-Mail Adresse enthalten.

Im Idealfall würden Sie uns mit Ihrer Email-Anfrage folgendes mitteilen:

Sie suchen mit wieviel Personen eine neue Wohnung?
Sie suchen ab wann eine neue Wohnung?
Sie machen was beruflich?

Hinweis 1: Alle Angaben, auch Flächenangaben, stammen von Dritten (Eigentümer, Verwalter, Mieter) für die wir weder Gewähr noch Haftung übernehmen können, Irrtum und Zwischenvermietung bleiben vorbehalten.

Hinweis 2: Die pauschale Warmmiete deckt alle Nebenkosten (ausgenommen Strom) ab. Bei Vertragsabschluss wird zusätzlich eine einmalige Verwaltungsgebühr in Höhe von 250,00 € fällig.

Hinweis 3: Bitte beachten Sie, dass eine zweite Person mit € 100.- pro Monat zusätzlich berechnet wird.

Hinweis 4: Bei den eingestellten Bildern handelt es sich um Beispielbilder eines Apartments.

Entfernungen / Distances:

ÖPNV / Public Transport: 500m / 6 Min S-Bahn Station Taunusanlage S1, S2, S3, S5, S6, S7

Innenstadt / Downtown: 1Km / 10Min

Hauptbahnhof / Central Startion: 450m / 5Min

Flughafen / Airport: 11,2Km / 15Min

Uni Campus West: 3Km / 12 Min

Uni Campus Riedberg: 9,9Km / 29Min

Frankfurt School of Finance: 3,4Km / 13Min

International School of Management Frankfurt: 2,3Km / 12Min

Supermarkt / Supermarket: 100m

Autobahn / Highway: A661 / Kaiserleikreisel 6.9Km / 15Min

Sonstiges

Unser Angebot an WG-Zimmern/Apartments in Frankfurt ist groß, sowohl im Bahnhofsviertel wie auch in anderen beliebten Stadtteilen.

Die all inkl. monatlichen Mieten variieren je nach Lage, Zimmergröße, Einzel-/oder Doppelbettgröße, Mietdauer und Zeitraum, insofern lohnt es sich immer mit uns Kontakt aufzunehmen und die aktuellen Angebote abzufragen.

Einheitlich in allen Objekten sind die Konditionen bzgl. der Kaution, welche vor Anmietung eines Zimmers zu zahlen ist und nach ordnungsgemäßer Rückgabe des Zimmers von uns entsprechend zurückgezahlt wird

Einheitlich in allen Objekten ist auch eine einmalige Verwaltungsgebühr in Höhe von € 250,- (gültig für max. 6 Monate).

Mietdauer ab 3 Monaten möglich.

Sie haben eine Frage?

Alexander Seufert

  • Chief Sales Officer
Google Maps

Mit dem Laden der Karte akzeptieren Sie die Datenschutzerklärung von Google.
Mehr erfahren

Karte laden

Alternative Zimmer

Zimmer 3, Uhlandstraße 36, 2.Obergeschoss links

  • 13 m²
  • 140x200cm
  • Business
650 € 800 800
mntl. zzgl. Kaution und Gebühr

Zimmer 2, Uhlandstraße 36, 2.Obergeschoss links

  • 12 m²
  • 160x200cm
  • Business
650 € 800 800
mntl. zzgl. Kaution und Gebühr

Zimmer 4, Uhlandstraße 36, 2.Obergeschoss links

  • 17 m²
  • 160x200cm
  • Business
700 € 800 800
mntl. zzgl. Kaution und Gebühr